With ArcGIS Aviation Charting, it takes less time for small changes and leaves less room for mistakes. It really facilitates work with big data. We now have data integrity and seamless operations, and we avoid entering data manually.
case story
State enterprise (SE) Oro navigacija is the only provider of the air traffic, and aeronautical communications, navigation, surveillance and information services as well as coordinates search-and-rescue operations in the event of an aircraft accident or emergency for the Republic of Lithuania. The SE serves civil and military aviation needs in peacetime.
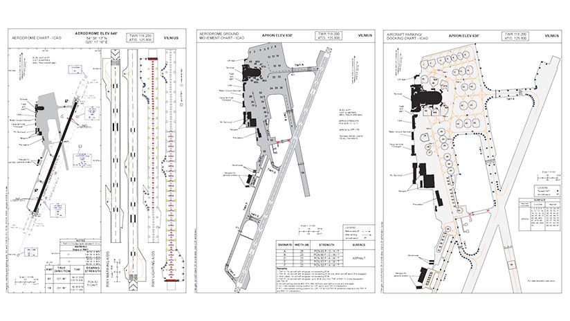
Oro navigacija needed a way to manage and share large volumes of aeronautical mapping information. The state enterprise needed to create a geographical database it could use to consolidate, manage and publish all its aeronautical information. The SE also wanted to ensure that the appropriate data could be selected and edited a single time within the geographical database to improve the accuracy and efficiency of the data. With such a large volume of data, it was clear that Oro navigacija needed to consider an enterprise solution.
Oro navigacija chose ArcGIS Aviation Charting as the enterprise solution to help meet the SE’s goals. The solution includes tools for managing large-scale aeronautical data and mapping. These tools provide functionality to create and analyze airspace, complex cartographic visualizations, and aeronautical charting as well as automatically update data. This allows Oro navigacija to manage resources more efficiently and save money. The ArcGIS Aviation Charting’s data management tools fully comply with Aeronautical Information Exchange Model (AIXM) 4.5 and 5.1 standards for air navigation data exchange. The software enables Lithuania’s national aeronautical information to be recorded in the European AIS Database (EAD).
“Data integrity is one of the most important requirements for our data quality,” said Virginijus Steponavičius, chief of Aeronautical Information Service Division, Oro navigacija. “Accurate data can reduce the impact of human factor and prevent errors in our production, which can be critical for flight safety.”
ArcGIS Aviation Charting is in line with the vision of Oro navigacija managers who wanted to have one geographic database for all validated and verified company data. Using this solution, staff created a library with required production elements and migrated all of their aeronautical data to the new database.
“Our data originators are happy that they do not need to convert data to some new format for data provision,” Steponavičius said. “Compared with other solutions on the market that are designed for such tasks, the one proposed by ArcGIS for Aviation: Charting and selected by us is cheaper and provides better functionality.”
Staff can now make changes more efficiently within the database instead of having to correct every page. Moreover, they save time using the ArcGIS Aviation Charting validation process. What used to take many days, now takes from two to three hours depending on the data. Oro navigacija is ready to reach compliance, prepared to deal with big data, and able to publish data on time without adding personnel.
With ArcGIS Aviation Charting, it takes less time for small changes and leaves less room for mistakes. It really facilitates work with big data. We now have data integrity and seamless operations, and we avoid entering data manually.
Back to: ArcGIS Aviation Charting